COMMUNITY커뮤니티
한국건설직업전문학교의 새로운 소식들을 알아보세요
공지사항·이벤트 한국건설직업전문학교의 공지사항과 다양한 이벤트를 확인해보세요!
[공지] [독산본점]3월개강_과정평가형 가구제작산업기사+실무2026.02.25 486 |
|---|
|
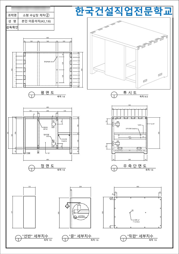
가구설계제작 실무 교육, 무엇을 배우나 1.가구 설계 기초 및 도면 이해 처음부터 어려운 설계를 요구하지 않습니다. 가구 구조의 기본 이해 치수 개념과 공간 비례 도면 읽는 법과 설계 사고 방식 가구가 어떤 구조로 만들어지는지 이해하는 것부터 시작해 설계에 대한 부담을 자연스럽게 줄여줍니다. 2.CAD를 활용한 가구 설계 실습 요즘 가구 제작 현장에서 설계 능력은 필수 요소 입니다. CAD 프로그램 기초 가구 도면 작성 연습 실제 제작이 가능한 설계 구현 단순히 화면 속 도면으로 끝나는 것이 아니라 실무 제작을 전제로 한 설계를 배우는 것이 핵심 입니다. ? 3.공구 사용법 실습 실습 교육에서 가장 중요한 부분 중 하나가 바로 공구 사용 안전 교육 병행 테이블쏘, 각도절단기, 트리머 전동공구 및 수공구 사용법 공구를 "보는 것"이 아니라 직접 다뤄보며 반복 훈련을 진행하기 때문에 현장 적응력이 자연스럽게 상승됩니다. 4.가구 제작 실습(재단 → 조립 → 마감) 목재 재단 조립 구조 이해 샌딩과 표면 정리 마감 처리 가구제작산업기사 자격증까지 포함된 커리큘럼 입니다. 실습 중심 교육이 주는 가장 큰 변화 도면을 보면 겁먹지 않는다 가구 구조가 눈에 들어온다 작업 순서를 스스로 판단할 수 있다 단순히 따라 만드는 단계에서 스스로 판단하고 작업하는 단계로 상승됩니다.
가구설계제작은 "시간이 쌓이는 기술" 경험이 쌓일수록 가치가 높아지고 손에 익을수록 작업 속도가 안정되며 결과물의 완성도가 달라집니다. 가구설계제작은 평생 가져갈 수 있는 실무 기술로 평가 받고 있습니다. 훈련과정명 : [과정평가형]가구제작설계를 위한 가구제작산업기사취득과정A 훈련기간 : 2026-03-13 ~ 2026-07-20(1일, 8시간 / 주5일) 가구는 우리 일상에서 필수적인 요소로 가능성 뿐만 아니라 공간의 미학과 분위기를 결정 짓는 중요한 역할을 합니다.
현대 사회에서 가구에 대한 요구는 단순한 기능적 요소를 넘어 개성과 취향을 반영하는 맞춤형 디자인으로 확정되고 있습니다. 이에 따라 가구제작 분야에서도 고도의 기술과 전문 지식을 갖춘 인재가 필요하게 되었고 이러한 요구에 부응하기 위해 가구제작기능사 자격증이 마련되었습니다. 신청방법 고용노동부에서 지원하는 국민내일배움카드 발급 받으셨다면 네이버에서 고용24 검색하셔서 직업능력개발 → 훈련찾기 · 신청 → 훈련기관명 /과정검색 클릭 후 훈련기관명 : 한국건설직업전문학교 검색하시면 현재 모집 과정을 확인 후 수강 신청까지 하실 수 있습니다. 내방상담예약 : 네이버 예약 혹은 전화예약 & 문자문의 상세한 내용 네이버블로그 참조(한국건설직업전문학교 검색) 전화 상담 : 02-2675-1710 |
| 이전글 | 공지[독산본점]2월개강!! 실내인테리어시공실무(건축목공+창호시공)C 손끝에서 완성되는 기술 |
|---|---|
| 다음글 | 공지[안양캠퍼스 2월 개강] 실내인테리어시공실무 (건축목공+창호시공) |







